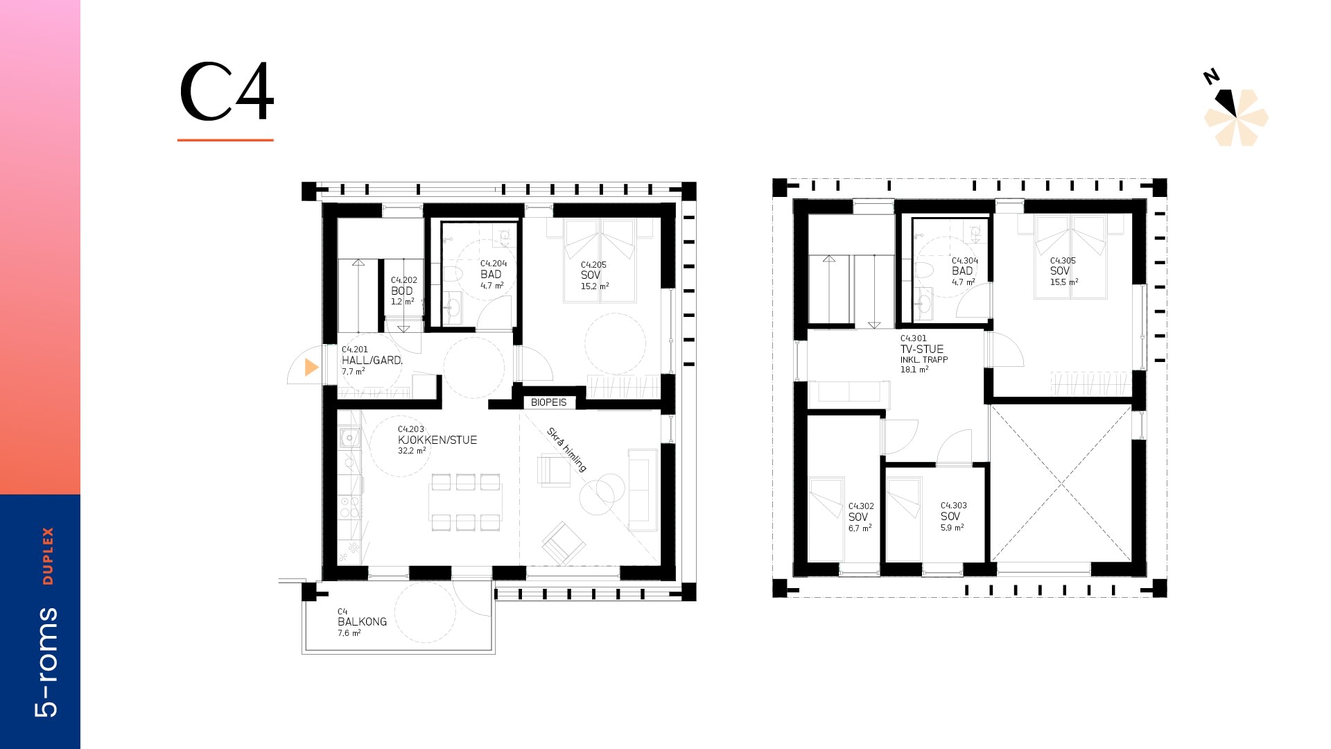
C4
Innholdsrik 5-roms toppleilighet over to plan, med ekstra god takhøyde og sørvendt balkong. Hovedsoverom med eget bad, og ekstra TV-stue i annenetasje. Kjøkken-/stueløsning med store vindusflater mot sør.
Status
Solgt
Leil.nr
C4
BRA m²
127
P-Rom m²
121
Ant. soverom
4
Uteplass TBA m²
8
Etasje
2.
Pris
---
Fasiliteter
• Toppleilighet med ekstra god takhøyde
• Omfangsrik leilighet over to plan
• Biopeis
• Kjøkken fra Expo Nova
• 4 soverom
• Ekstra TV-stue i annenetasje
• Kjøkken-/stueløsning med peis og store vindusflater
• Sørvendt balkong
• 2 lekre flislagte bad
• Velutstyrt kjøkken med integrerte hvitevarer fra Miele (el. tilsv.)
• Bergvarme med vannbåren gulvvarme
• Oppvarmet garasjeplass med elbillader
• Oppvarmet skibod + ekstra utebod
