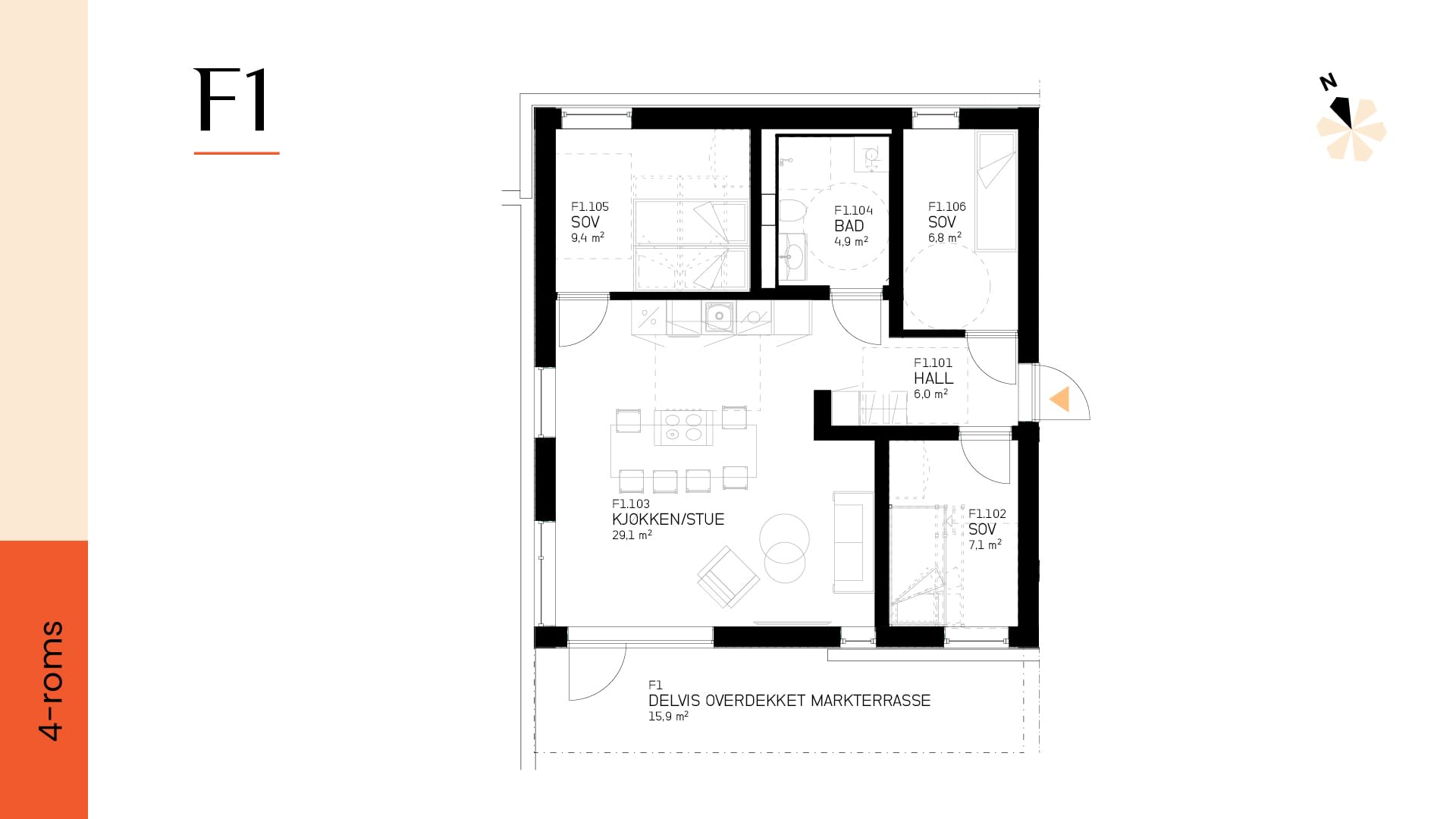
F1
Arealeffektiv 4-roms med sørvendt terrasse, delvis under tak. Kjøkken-/stueløsning med kjøkkenøy og store vindusflater mot sør og vest.
Status
Ledig
Leil.nr
F1
BRA m²
75
BRA-i m²
69
Ant. soverom
3
Uteplass TBA m²
16
Etasje
1.
Pris
6 090 000
---
Fasiliteter
• 3 soverom
• Kjøkken-/stueløsning med store vindusflater
• Stor sørvendt terrasse
• Lekkert flislagt bad
• Velutstyrt kjøkken med integrerte hvitevarer fra Siemens (el. tilsv.)
• Bergvarme med vannbåren gulvvarme
• Oppvarmet garasjeplass med elbillader
• Oppvarmet skibod + ekstra utebod
• Kjøkken fra Expo Nova tilgjengelig som tilvalg
